属羊的朋友们,平时温柔与世无争的你们,是否渴望生活来点波澜。别急,12月15 - 16号,特别是15号,就是那极为罕见的突破契机,错过或许要等很久!从...
2025-12-14 0
上一篇文章咱们分享了“一进院落、二进院落、三进院落”这三种常见的四合院的基本格局,今天我们就继续介绍剩下的几种基本格局。
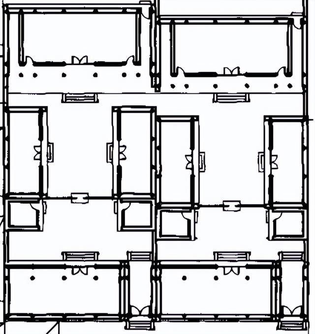
4、四进院落。四进院落是三进院落沿纵深方向的进一步扩展,它已经属于大型的居住宅院了。一般做法是,在三进院后面加一排后罩房。这样的四进院子,中轴线上从南至北依次为倒座房、第一进院、垂花门、第二进院、正房或过厅、第三进院、正房、第四进院、后罩房。下面为其示意图:
四进院落平面示意图
四进院落俯视图
在实际的建造中,有些四进的院落并不像上述的布局这样规整,可以根据房屋主人的喜好而进行较大的布局调整,只是整体上看带保持四进院落的格局。
例如东城区南锣鼓巷帽儿胡同中的一座宅院,它的宅门与第一进院和垂花门,是同上述常规院落保持一致的。只是第二进院子里,它的三间客厅是独立布置于院中的,两侧没有耳房,而是东西对称布置的两列厢房。客厅向北又是一座垂花门,由此进入第三进院子。第三进院子与常规的布局也是不太一样,它在主房两侧的耳房旁边都留有通向后院的过道。最北面经过一道屏门就是第四进院和后罩房了。
非常规布置的四进院落1
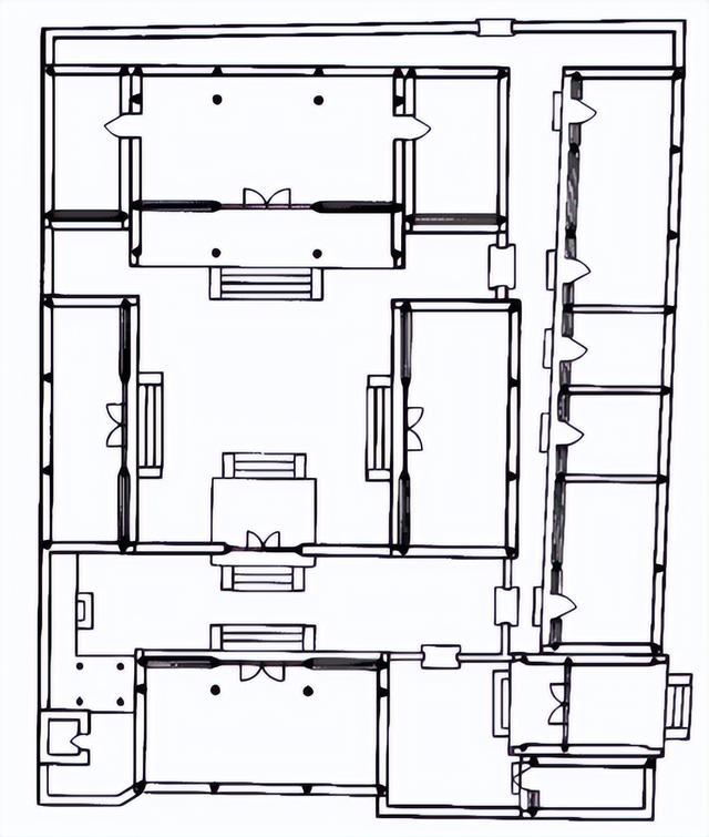
再例如另外一座四进院落,它的布置格局又是别具一格。它的第二进院与第一进院虽然留有屏门,但在西侧又是连通的。第二进院北侧正房五间加耳房共七间,中部明间是过厅,能往第三进院子。第三进院子南北之间只有几米的间距,所有没有布置任何房间,纯粹只是条狭长的小院。然后再往北通过垂花门后,就进入到了第四进院子,第四进院子北面就是常规的三间主房加左右两侧各两间耳房布局,东西厢房、主房和厢耳房由抄手游廊环形连通。
非常规布置的四进院落2
由以上所举的三个例子可知,四进式的四合院,其具体的平面格局受地形和屋主的个人喜好等因素影响,可以有很多不同的布局方式。
5、一主一次并列式院落。这是一种在常规四合院左侧或者右侧又增加一排房屋和院子的院落组合,一般这种组合方式在因为宅基地较宽,但又不足以建筑并列两座宅院的情况下使用。
一主一次并列式院落俯视图
另外一种一主一次并列院落的平面图
以由上两张图可见,一主一次并列院落的出现,主要还是本着充分利用土地的原则,而对标准四合院进行的扩展建造。
6、两组或多组并列式院落。顾名思义,这是由两座或多座大小相等或相近的院落并列布置而形成的,一般各个院落之间都有屏门连接,合得其各自独立又可相互沟通。这种院落的组合体规模庞大,一般都是豪门大户的宅子。
两组并列式院落平面示意图
当然,在较小的宅基地上,如果需要给兄弟二人分开建房的话,也可以用到这种并列式的院落建造方法,如下图所示:
小块宅基地的并列式院落
以现在的眼光来看,这种院落的组合方式,是不是跟我们所谓的联排别墅有异曲同工之妙?
7、带花园的合院住宅。在北京的很多大、中型四合院中,有很多是带花园或游园的。特别是在清朝,受皇家建园成风的影响,很多达官贵族和富商巨贾们也都兴建起了自己的私家园林。皇家宅院与园林占地更大,园中不乏水榭亭楼、奇花名木。但达官贵族和富商巨贾们却不敢依样画葫芦,他们的宅边花园一般规模较小,但却讲究布局的小而精。
王府的宅园
至此,通过两篇文章,我们已经介绍完了七种北京四合院的基本格局。总结来说,一、二进式院落是北京四合院的基本组成单元,它是广大平民百姓的选择。而三进以上的宅院,一般都是有些身份和地位的大户人家所居。
站在当今的时代来看,一些商品房(尤其是仿古建筑)的小区布局和户型布置,都或多或少的受到了古代住宅建造方式和布局的影响。比如:主房与厢房相对的位置、宅门的安放方位、各房间的高低关系、台阶踏步的阶数要求等等,都是对古代建筑营造技术的一种传承。
后续的文章我们开始探讨北京四合院的空间关系,敬请关注。
相关文章
属羊的朋友们,平时温柔与世无争的你们,是否渴望生活来点波澜。别急,12月15 - 16号,特别是15号,就是那极为罕见的突破契机,错过或许要等很久!从...
2025-12-14 0
一提起属猪人,就像看到一只慵懒又暖心的小胖猪,窝在阳光下慢悠悠地享受生活。他们性格温和醇厚,待人真诚又仗义,不管对朋友还是家人都掏心掏肺,浑身透着让人...
2025-12-14 0
日本这一次,真的是贼心不死。此前,日本自卫队内部人员称,如果福建舰在台湾采取军事行动,日本和美国有能力击沉福建舰对于这样的言论,国防部新闻发言人蒋斌大...
2025-12-14 0
泰国的F-16和坦克这次直接开到了家门口,打得柬埔寨毫无还手之力,洪森眼看硬得不行,竟然在网上晒旧照想攀亲戚求和,结果被泰国怼成了电信诈骗。几个月前是...
2025-12-14 0
斯塔默访华应该是彻底没戏了,面对中方的好言相劝,英国一意孤行,让国家的信誉度大降,中方的回应既婉转也明确,那么,英国究竟做了什么?外交部又是如何回应的...
2025-12-14 0
我知道你最近有点烦。计划得好好的事,临门一脚总出岔子。想存钱,总有笔意外开支;想静心,总被杂事打扰。你叹了口气,觉得是不是自己运气不好。别急着下结论。...
2025-12-14 0
中国制造业实力稳居世界前列,可国内却仍深陷内卷困局,多数人没能实现高工资、高福利的生活。如何完成从国家富、企业富到人民富的跨越?把下半年的三件大事串联...
2025-12-14 0
夜幕里的纽约交易大厅静得出奇,只有电子屏的绿光在面孔上跳动。几乎同一时刻,电视里传来宾州集会的欢呼,特朗普用他一贯的夸张语气宣布“中国要买走数万亿美元...
2025-12-14 1
发表评论